Renseignements sur le bien
Caractéristiques et commodités
- TypeAppartement
- Surface165 m2
- Terrasse14 m2
- Chambres5
- Salles de bain2
- Douches2
- Toilettes3
- GarageNon
- Emplacements de parkingNon
- AscenseurNon
Description
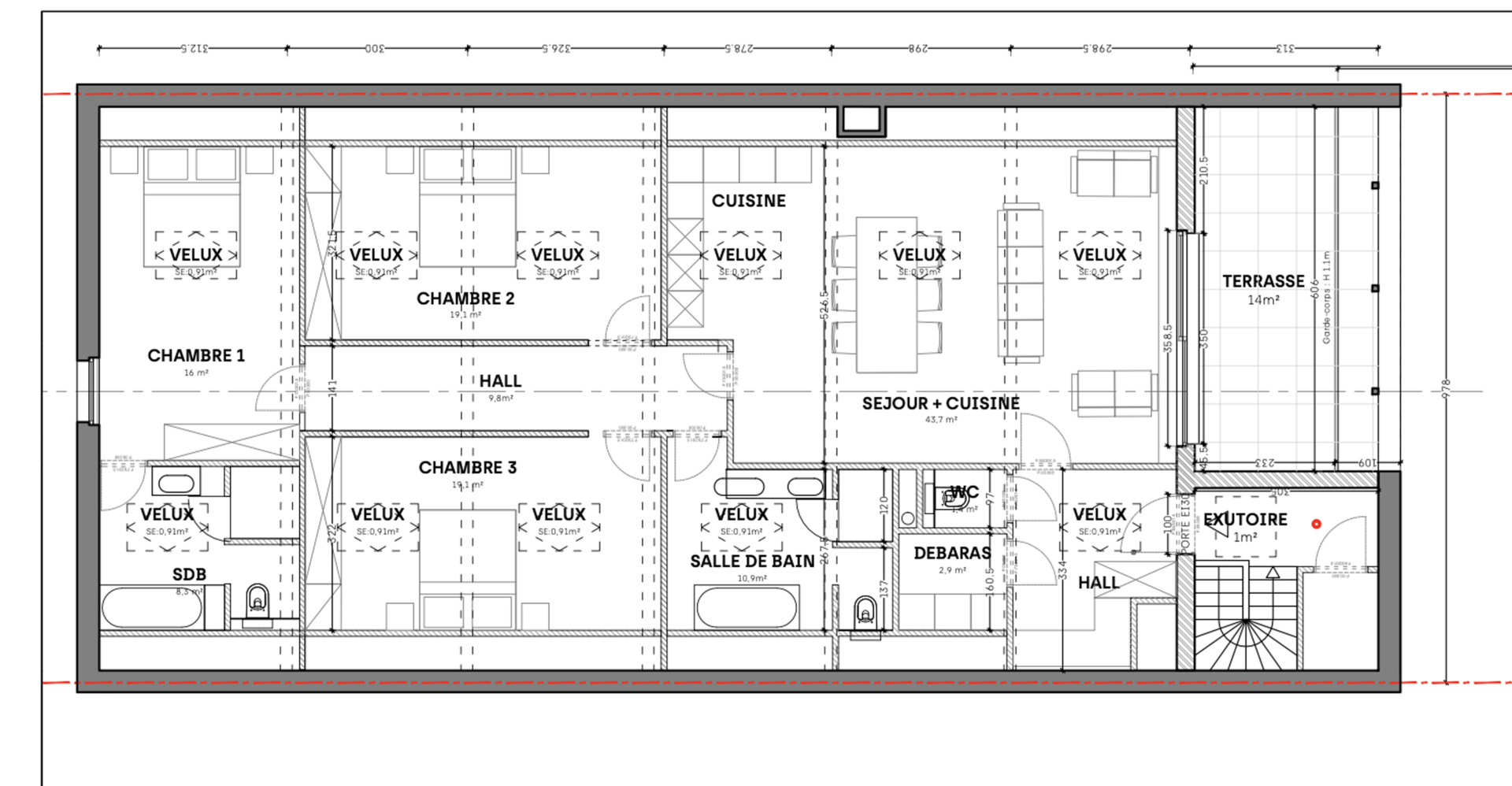
Au cœur de Schaerbeek, dans le quartier Collignon, venez découvrir ce magnifique penthouse offrant un potentiel de 5 chambres + terrasse, situé dans un charmant immeuble arrière en intérieur d'îlot, qui bénéficie ainsi de la quiétude du quartier.
Ce superbe bien rare se compose comme suit :
Un hall d’entrée donnant sur le vaste séjour lumineux avec accès à la belle terrasse couverte de 14 m², orientée OUEST, donnant sur la tranquillité de l’intérieur d’îlot. Belle cuisine américaine full-équipée, un couloir desservant deux grandes chambres de 19 m², une salle de bain avec baignoire et WC, une chambre parentale (16 m²) avec salle de bain privative et WC, un débarras, un WC séparé et des rangements.
Il est possible d’ajouter deux cloisons pour transformer ce magnifique appartement de trois chambres en un bien de cinq chambres.
Le bien possède de nombreux charmes, tels que les poutres apparentes d'origine et les nombreux velux neufs apportant une luminosité exceptionnelle. La toiture a été refaite et isolée, PEB D, électricité conforme et compteurs individuels.
A VISITER !!
Principales caractéristiques
| référence | 7316214 |
|---|---|
| Type | Appartement |
| Surface habitable | 165 m2 |
| Superficie terrain | 390 m2 |
| Nombre de salles de bains | 2 |
| Nombre de chambres à coucher | 5 |
| Nombre de façades | 4 |
| Meublé | Non |
| Garage | Non |
| Jardin | Non |
| Emplacements de parking | Non |
| Terrasse | Oui |
| Surface terrasse 1 | 14 m2 |
| Nombre d’étages | 3 |
| Année de construction | 1931 |
| année de rénovation | 2025 |
| Disponible le | à l'acte |
Intérieur
| Nombre de toilettes | 3 |
|---|---|
| Nombre de salles d’eau | 2 |
| Chambre 1 | 19 m2 |
| Chambre 2 | 19 m2 |
| Chambre 3 | 16 m2 |
| Salon | 45 m2 |
| Type de cuisine | US hyper equipped |
| Ascenseur | Non |
| Fenêtres à double vitrage | Oui |
| Type de double vitrage | thermic and acoustic isol. |
| Type de chauffage | gas |
| Salle de bains | shower and bath tub |
| Interphone | Oui |
| Vidéophone | Oui |
| Système téléphonique | Oui |
| Parking intérieur | Non |
| Parking extérieur | Non |
| Buanderie | Oui |
Extérieur
| Largeur de la façade avant | 9.78 m |
|---|---|
| Nombre de terrasses | 1 |
| Orientation de la terrasse | west |
| Piscine | Non |
Renseignements
| Label PEB | 208 |
|---|---|
| Label PEB | D |
| Code PEB | - |
| Destination à l’urbanisme | Inconnu |
| Permis d'urbanisme | Non |
| Permis de lotir | Non |
| Convocation | Non |
| Décision de justice | Inconnu |
| Droit de vendre | Inconnu |
| Rez-de-Chaussée | pas situé en zone inondable |

Florent Gossart
Fondateur | Agent immobilier | Ventes | Locations - IPI 513.507
Appelez-nous
02 420 65 01Nos ventes
Actifs dans toutes les communes de Bruxelles, et également au-delà, découvrez ici l'ensemble des propriétés commercialisées par Fierce Immo.



























