Renseignements sur le bien
Caractéristiques et commodités
- TypeAppartement
- Surface66 m2
- Chambres1
- Salles de bain1
- Douches1
- Toilettes1
- GarageNon
- Emplacements de parkingNon
- AscenseurNon
Description
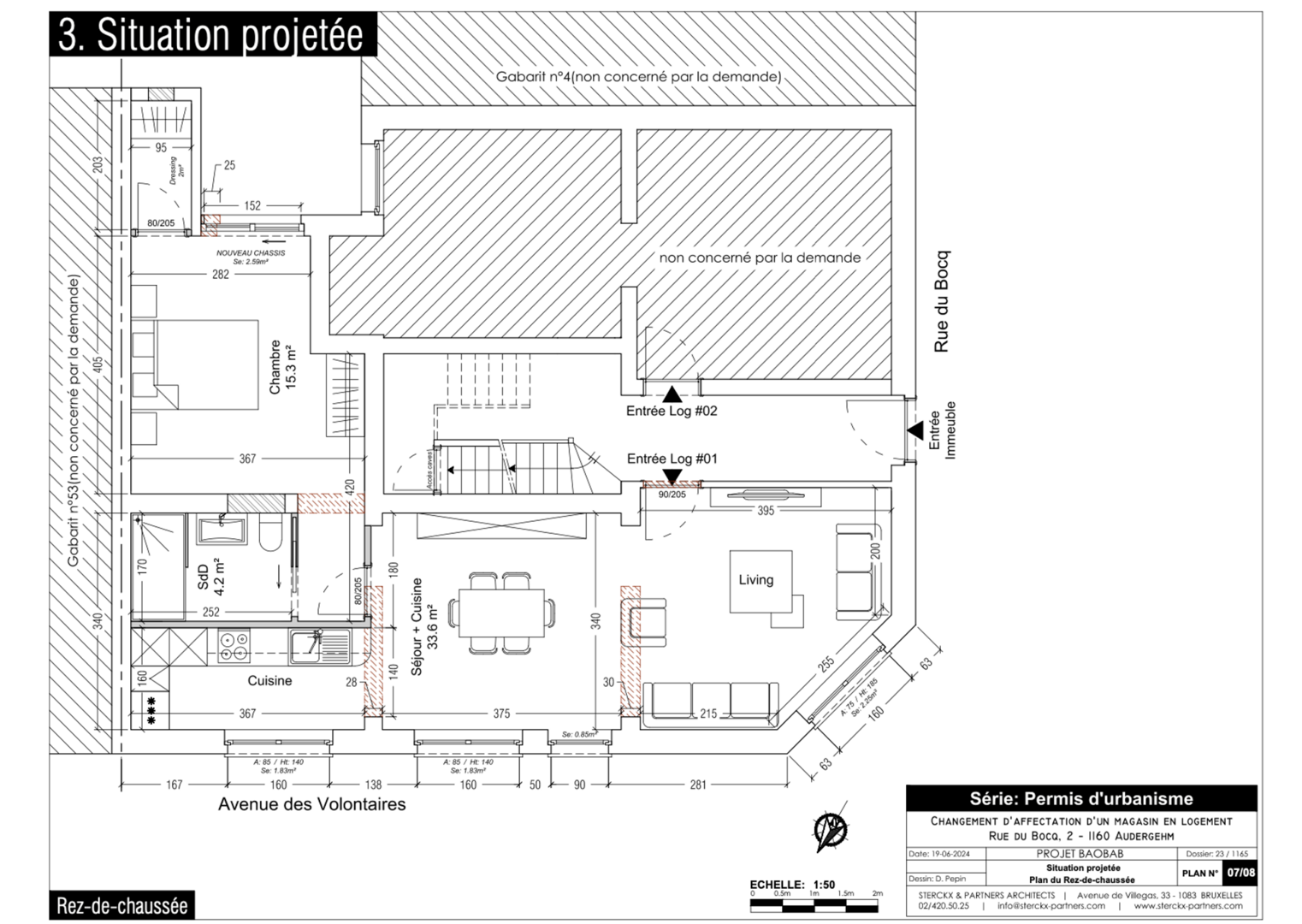
À deux pas du métro Pétillon et proche de toutes les facilités, découvrez notre rez-de-chaussée d'une chambre. Un permis d'urbanisme vient d'être accepté pour changer l'affectation du rez-de-chaussée (plans dans les photos) en logement, car il est actuellement repris comme rez-de-chaussée commercial. Le bien est actuellement exploité en cabinet médical. Les travaux sont à votre charge.
Situé au rez-de-chaussée d’une petite copropriété sans charges, le bien se compose d’une entrée donnant sur l’espace de vie (living, salon, cuisine ouverte sur l'espace de vie), salle de douche avec WC, chambre à l'arrière avec dressing.
Cave comprise, double vitrage, chaudière individuelle au gaz, compteurs individuels. **PAS DE CHARGES !!**
Beau rez-de-chaussée à saisir !!
Situé au rez-de-chaussée d’une petite copropriété sans charges, le bien se compose d’une entrée donnant sur l’espace de vie (living, salon, cuisine ouverte sur l'espace de vie), salle de douche avec WC, chambre à l'arrière avec dressing.
Cave comprise, double vitrage, chaudière individuelle au gaz, compteurs individuels. **PAS DE CHARGES !!**
Beau rez-de-chaussée à saisir !!
Principales caractéristiques
| référence | 7277701 |
|---|---|
| Type | Appartement |
| Surface habitable | 66 m2 |
| Superficie terrain | 135 m2 |
| Nombre de salles de bains | 1 |
| Nombre de chambres à coucher | 1 |
| Nombre de façades | 3 |
| Meublé | Non |
| Garage | Non |
| Jardin | Non |
| Emplacements de parking | Non |
| Terrasse | Non |
| Année de construction | 1932 |
| année de rénovation | 2000 |
| Disponible le | En fonct. du locataire |
Intérieur
| Nombre de toilettes | 1 |
|---|---|
| Nombre de salles d’eau | 1 |
| Chambre 1 | 13.4 m2 |
| Salon | 38 m2 |
| Type de cuisine | fully fitted |
| Ascenseur | Non |
| Fenêtres à double vitrage | Oui |
| Type de double vitrage | thermic and acoustic isol. |
| Type de chauffage | gas |
| Salle de bains | shower |
| Système téléphonique | Oui |
| Parking intérieur | Non |
| Parking extérieur | Non |
Extérieur
| Superficie construite | 542 m2 |
|---|---|
| Largeur de la façade avant | 15 m |
| Nombre de terrasses | 0 |
| Piscine | Non |
Renseignements
| Label PEB | 301 |
|---|---|
| Label PEB | F |
| Code PEB | - |
| Destination à l’urbanisme | Inconnu |
| Permis d'urbanisme | Inconnu |
| Permis de lotir | Inconnu |
| Convocation | Non |
| Décision de justice | Non |
| Droit de vendre | Non |
| Rez-de-Chaussée | pas situé en zone inondable |

Florent Gossart
Fondateur | Agent immobilier | Ventes | Locations - IPI 513.507
Appelez-nous
02 420 65 01Nos ventes
Actifs dans toutes les communes de Bruxelles, et également au-delà, découvrez ici l'ensemble des propriétés commercialisées par Fierce Immo.








